天津市武清区人民政府 2019年12月3日星期二

无障碍 无障碍 简体 | 繁体 长者模式 长者模式

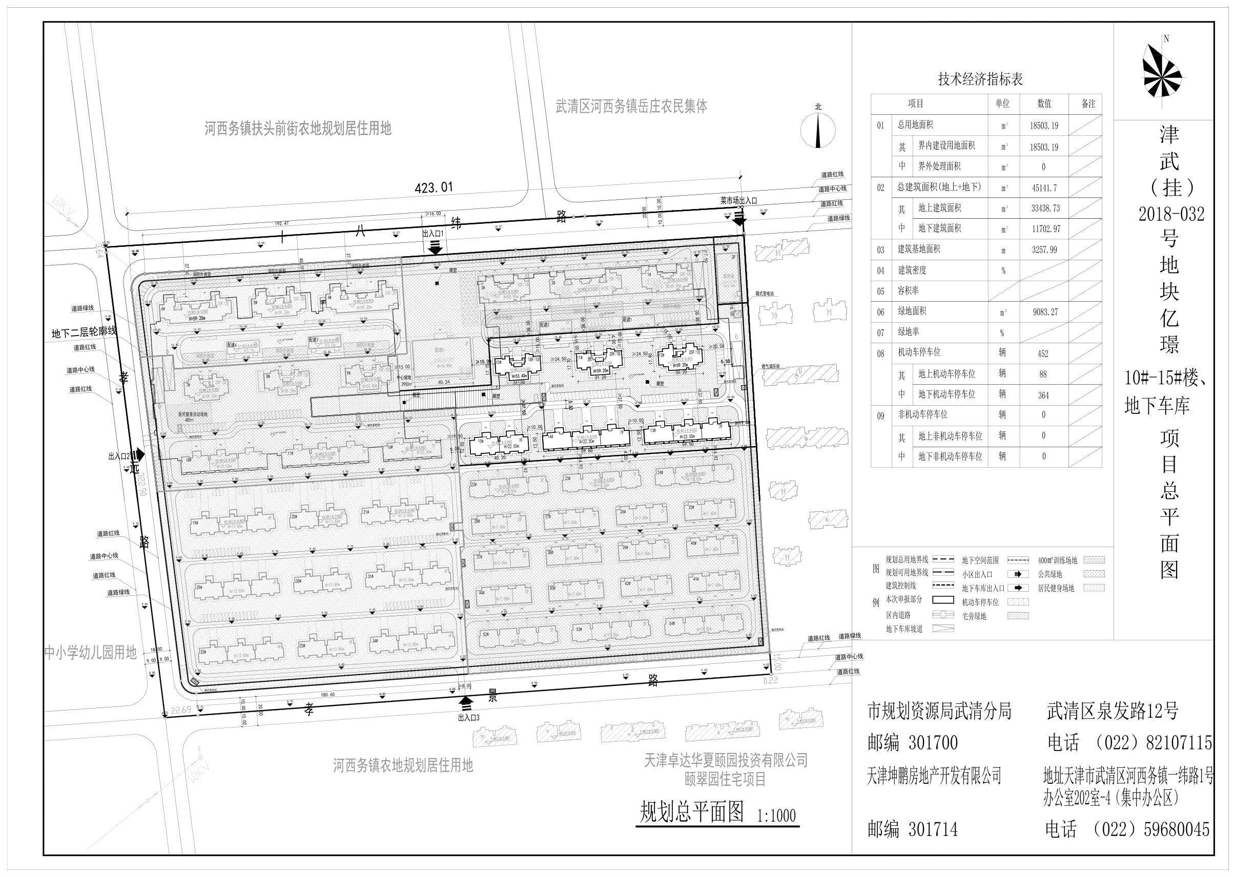
关于天津坤鹏房地产开发有限公司亿璟园10#-15#楼及地下车库项目建设工程设计方案总平面图的公布
来源:天津市规划和自然资源局武清分局 发布时间:2025-12-25 15:32


依据《中华人民共和国城乡规划法》、《天津市城乡规划条例》等相关法律法规的有关要求,现将审定后的天津坤鹏房地产开发有限公司亿璟园10#-15#楼及地下车库项目建设工程设计方案总平面图进行公布,公布期限自《建设工程规划许可证》批后至建设项目规划核实合格为止。 

天津市规划和自然资源局武清分局

2025年12月25日